Дом 93.4 м² на участке 7.5 сот.

9 990 000₽

Характеристики

  • Площадь участка: 7.5 сот.
  • Площадь дома: 93.4 м²
  • Этажей в доме: 1

Описание

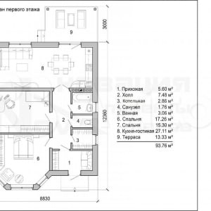
Продается прекрасный одноэтажный дом для небольшой семьи в д. Большое Щапово! Дом на данный момент строится (блок-«капсимэт»), будет с внутренней отделкой и коммуникациями (полы-ламинат в комнатах, плитка на полу в коридоре, санузле, котельной, стены с обоями под покрас, в коридоре и санузле будут полы с подогревом, заезжай и живи! Отделан дом будет клинкерной плиткой. Хорошее месторасположение, магазин в пешей доступности, в соседней деревне есть школа и детский садик, ездят автобусы, до Клина 10 минут на машине. Дом расположен в деревне, асфальтированная дорога, прям до участка. Общая площадь дома 93,4 кв.м, две комнаты 18/15 кв.м, кухня-гостиная 27 кв.м, санузел 4 кв.м, котельная 4 кв.м, большой коридор, открытая терраса. Участок ИЖС, площадью 7.5 соток. Из коммуникаций: электричество 15 кВт, вода колодец (можно подвести центральную воду и водоотведение), септик, газ по границе участка. Дом на стадии строительства, срок сдачи дома конец июля.

Адрес

Московская область, г.о. Клин, д. Большое Щапово


Сеть городских порталов: Купить квартиру в Рыбинске